Academic Built Exhibition Photography Calligraphy Drawing Animation
Net-café-in-the-field House
BA (Hons) Year 3, Experimental 6 in Architectural Association, 2019-20
Tutor: Brendon Carlin, James Kwang Ho Chung
Net-café-in-the-field House is for 100 people where 55% of the house is about encouraging the residents to design their own ways of living in the open fields.

Life in Tokyo and Konohana Family
The research starts from looking at Japan.
Case 1: Danchi
In the last century, there was a mass-produced type of residential building called Danchi.
It symbolizes an ideal nuclear family life where every member has certain responsibilities defined by one’s social role.


Life in Danchi
Case 2: Net-café Refugees
After the Japanese economy bubble burst in 1990s, many people went bankrupted and the ideal structure of nuclear family also collapsed. People became atomized individuals. Some chose to took net café as their shelters, known as Net-Café Refugees.




Net
Café Refugees
In net café, you have access to an isolated cell with internet, bottomless drinking, manga, bathing, etc. Net café is a highly well-designed type to accommodate as many people as they can with the lowest price and all basic amenities for daily life.


Life in Net Café
Although every urban apartment like Danchi could look different, the residents are following the same rule with familiar identities. Net café refugee does not follow it anymore as the refugees have no longer responsibility that defined one’s role.
Case 3: Konohana Family
While others were struggling in big cities, group of people chose to find an alternative way out. Established in 1994, Konohana family is a self-sufficient rural community near Fuji mountain with members who once lived and worked in the big cities in Japan.




Konohana Family
Agriculture is a direct approach to self-sufficiency with least reliance on market. There is neither employment relationship nor competition in the process of production or reproduction. Their work directly support the running of community.




All adult members participate in daily meetings after dinner in their main building, when each team reports the day and arrangements are discussed for the next day.
They negotiate, invent their lives, and reinvent their living space by themselves.


Main Building for Dining and Meeting
When there is no crops grown in the field, they even use the field as their living space. They do barbeque, take bath, dine together, sleep in tents…almost everything they could do in their building.




Self-organized Life in Fields
Fields for konokana family, is an expression of liberation. they left buildings and design their own living space in the field.

Life in the Fields
These cases serve as the precedents where people liberate themselves from their imposed social roles. Even net café is not considered as a bad example where people live miserably but as a way escaping from the status quo where people have most of their lives sharing with one another with minimized individual space.



Design Proposal
The Net-café-in-the-field House features its openness and undersigned blank area that encourages people to design their own ways of living in fields.
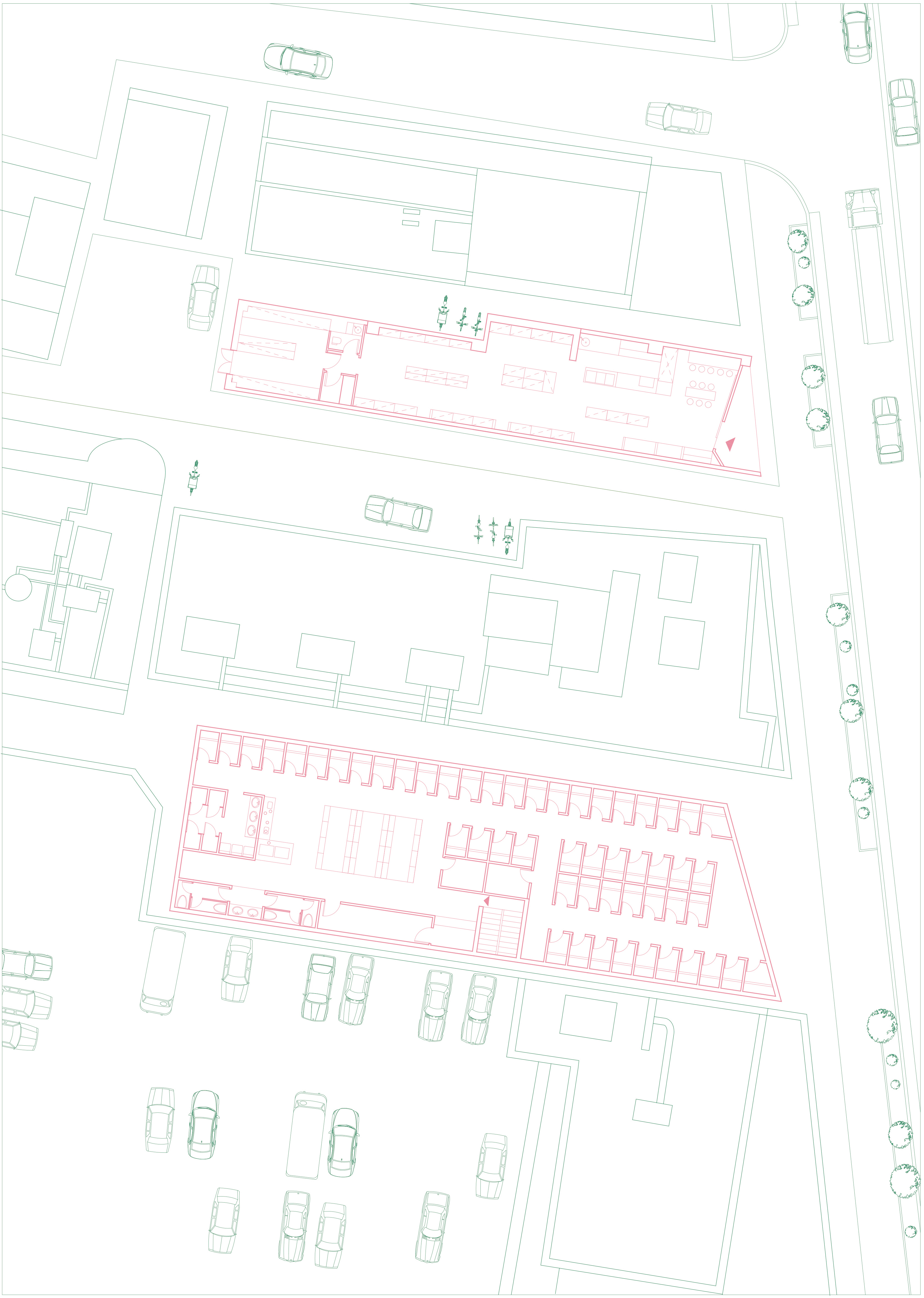
The site is located in a big field in Yakiri area in Matsudo, a small city considered as a "bed town" for Tokyo where people could commute within half an hour.



Site in Fields, Yakiri, Tokyo
The house takes advantage on the pathways between fields thus connect all the fields into a whole. With openings in the middle of each pathway as the connection, different units with various shapes are formed.
Fields are enclosed by the units and play the role of courtyards, in other words, the shared big living rooms where people could freely arrange their lives that is contrast to the status quo in Tokyo.

Overall Plan of Net-café-in-the-field House
The living cell, measured 1.8m x1.8m. There is glass sliding door on the south side to have more sunlight in and bifold door on the north side to make the space continuous with the common area.


Individual Cell in the House
The spaces are in two levels. The upper level, more for domestic activities, is made with wood and tatami where people need slippers to get onto.


Detailed Section
The lower level, made of concrete, serves as the buffer zone that triggers the interaction between fields and interior.




It creates a rather interior territory where a room is only defined by the furniture put onto it. It provides a stage and functions as the interior does but the stage is fluid and ever-changing corresponding to the activities.

Fields as Shared Living Rooms
The bifold door enables the interior to be continuous with the courtyard so that it triggers the field to be a dining space.

The exterior space could really serve as a common space where
various interior scenarios could take place.

The
residents are taking a nice break in the bathing after helping the local
farmers to cultivate the crops on the field, so that they could get certain
rent discount.
In general, the Net-café-in-the-field House serves as a trigger to different appropriation of the field, a common space where people could design their own living space.
45% of the house is very tightly designed so that the other part could be very open-ended. In that sense, the fields could be triggered by the designed part and thus appropriated by the residents themselves.



Overall Section of the Net-café-in-the-field House
The house enables the fields to be organized as the main living space that has no pre-determined definition and doesn’t assume anything about the way people live.